55 + 57 Hailgate, Howden, Goole, North Humberside, DN14 7ST

Loading the bidding panel...

Buy with Auction Finance
Guide Price

£150,000

Hailgate
Goole
North Humberside
DN14 7ST
Share this property
The Auction Company
London
0333 207 2707

FOR SALE BY AUCTION To book a viewing, please call David Leake on 07768 131415 The Property Experts. *** Open House Aug 27th 12 PM - 1 PM

Description

*** Open House Aug 27th 12 PM - 1 PM

Are you looking for a project? Then this could be the property for you. We are delighted to offer this four-bedroom property for sale with our partners David Leake and The Property Experts.

In need of refurbishment, this could make an ideal family home or an investment opportunity.

(Information from The Auction Company)

Please note that all marketing including property description and imagery has been provided by the introducing agent. The Auction Company strongly recommends interested parties arrange an in-person viewing (strictly by appointment only) to fully appreciate all the property has to offer and to satisfy your own requirements.

Method of Auction:

- This is a ‘Timed Online’ auction, meaning bidding takes place online.
- Visit The Auction Company website find the property details and the bidding method.
- How long the bidding process is open for, is clearly stated as is the closing date and end time.

Registering to bid:

- In order to bid on the property, you are required to register your details.
- You will be required to undertake identity checks as this is the law.
- You will be required to register your payment details. This is to ensure you have funds available to settle the Buyer’s Premium and deposit.
- A hold/shadow will be placed on £1,000 for this.
- If you place a bid, it is deemed you have read, understood and agree to the Terms and Conditions of The Auction Company in their entirety.
- T&Cs, Buyers Terms and Special Auction Conditions are found on each property details. You must read these before bidding.

Auction type - Traditional Method of Auction (Unconditional):

- If you are the highest bidder, you must exchange legally binding contracts for the sale when the auction for the property comes to an end and complete with 28 days.
- The held amount of £1,000 will be deducted from your account and forms the Buyer’s Premium minimum amount.
- You will be contacted within 2 hours to settle the deposit amount payable and any remaining Buyers Premium due.
- The Buyer’s Premium is set at 4% + VAT (£5,000 + VAT minimum). This is non-refundable and does not constitute towards the cost of the property.
- The deposit amount is 10% of the sale price and will be collected within 2 hours of the close of auction.

Legal Pack:

- The legal pack is a set of documents that relate to the property and the sale of it.
- It is highly recommended that you download and consider the provided legal pack for the property you are interested in bidding on.
- It is also advisable that you seek legal advice regarding the content of the legal pack, to ensure certainty before bidding.
- To download the legal pack, search for The Auction Company website and find the property of interest. There is a tab for ‘legals’ where you will find the documents. To download, you must create a free account with The Auction Passport.
- The legal pack can change at any time up until the auction starts so you must check for the most recent version of the legal pack. At the point of placing your bid, you are deemed to have read the legal pack in its entirety, including any changes. Failure to check for changes to the legal pack will not be a valid reason for withdrawing from the sale.

Special Conditions of Sale:

- These conditions are not set by The Auction Company. They are conditions stipulated by the seller and are contractually binding.
- You are taken to have read and accepted these at the point of bidding, even if you have not done so. The Special Conditions of Sale are available to read in the legal pack.

Council Tax Band

D

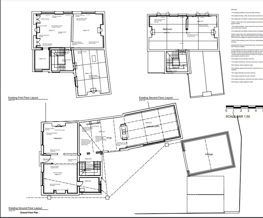
Test Floor Plan
Test Charge

Property Details

55 + 57 Hailgate, Howden, Goole, North Humberside, DN14 7ST

FOR SALE BY AUCTION To book a viewing, please call David Leake on 07768 131415 The Property Experts. *** Open House Aug 27th 12 PM - 1 PM

Guide Price

£150,000



4 beds


1 bathroom


* Generally speaking Guide Prices are provided as an indication of each seller's minimum expectation, i.e. 'The Reserve'. They are not necessarily figures which a property will sell for and may change at any time prior to the auction. Virtually every property will be offered subject to a Reserve (a figure below which the Auctioneer cannot sell the property during the auction) which we expect will be set within the Guide Range or no more than 10% above a single figure Guide.

Available Lots

  LIVE NOW

Traditional Method

Beacon Road, Dorset

AUCTION SALE – CASH OR MORTGAGE WELCOME
Guide Price

£250,000

Address

25 West Coast Beacon Road, Bournemouth, Dorset, BH2 5ER

Auction Ends


2 beds


2 bathrooms


1 reception

  LIVE NOW

Traditional Method

Kings Mead, West Yorkshire

AUCTION SALE – CASH OR AUCTION FINANCE
Guide Price

£90,000

Address

2 Kings Mead, Pontefract, West Yorkshire, WF8 4EP

Auction Ends


3 beds


1 bathroom


1 reception

  LIVE NOW

Traditional Method

Purbeck Road, Dorset

AUCTION SALE – CASH OR MORTGAGE WELCOME
Guide Price

£365,000

Address

32 Purbeck Road, Bournemouth, Dorset, BH2 5EF

Auction Ends


4 beds


3 bathrooms


3 receptions

  LIVE NOW

Traditional Method

Borron Road, Merseyside

AUCTION SALE – CASH OR AUCTION FINANCE
Guide Price

£68,000

Address

Apartment 10, Whitecross Court Borron Road, Newton-le-Willows, Merseyside, WA12 0DT

Auction Ends


2 beds


1 bathroom


1 reception

  LIVE NOW

Traditional Method

Borron Road, Merseyside

AUCTION SALE – CASH OR AUCTION FINANCE
Guide Price

£80,000

Address

Apartment 3, Whitecross Court Borron Road, Newton-le-Willows, Merseyside, WA12 0DT

Auction Ends


3 beds


1 bathroom


1 reception

  LIVE NOW

Traditional Method

Chester Lane, Cheshire

AUCTION SALE – CASH OR AUCTION FINANCE
Guide Price

£110,000

Address

Stone Cottage Chester Lane, Winsford, Cheshire, CW7 2QN

Auction Ends


2 beds


1 bathroom


1 reception

  LIVE NOW

Traditional Method

Prescot Road, Merseyside

AUCTION SALE – CASH OR AUCTION FINANCE
Guide Price

£215,000

Address

15 Prescot Road, St Helens, Merseyside, WA10 3UF

Auction Ends


6 beds


3 bathrooms


1 reception

  LIVE NOW

Traditional Method

Samuel Ogden Street, Lancashire

AUCTION SALE – CASH OR AUCTION FINANCE
Guide Price

£103,000

Address

1 Samuel Ogden Street, Manchester, Lancashire, M1 7AX

Auction Ends


1 bed


1 bathroom


1 reception

  LIVE NOW

Traditional Method

Alderbrook Road, West Midlands

AUCTION SALE – CASH OR AUCTION FINANCE
Guide Price

£900,000

Address

27 Alderbrook Road, Solihull, West Midlands, B91 1NN

Auction Ends


5 beds


2 bathrooms


4 receptions

  LIVE NOW

Traditional Method

Higher Road, Merseyside

AUCTION SALE – CASH OR AUCTION FINANCE
Guide Price

£200,000

Address

292 Higher Road, Liverpool, Merseyside, L26 9UF

Auction Ends


3 beds


1 bathroom


2 receptions

  LIVE NOW

Traditional Method

Parker Close, Surrey

INFORMATION FROM THE AGENT: This
Guide Price

£900,000

Address

1 Parker Close, Carshalton, Surrey, SM5 3HF

Auction Ends


6 beds


5 bathrooms


3 receptions