16 Nelson Street, Crewe, Cheshire, CW2 7LJ

Loading the bidding panel...

Buy with Auction Finance
Guide Price

£70,000

Nelson Street
Crewe
Cheshire
CW2 7LJ
Share this property
The Auction Company
London
0333 207 2707

FOR SALE BY AUCTION * CASH BUYERS * AUCTION FINANCE * 28-DAY COMPLETION

Description

INFORMATION FROM THE AGENT:

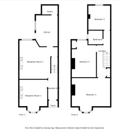
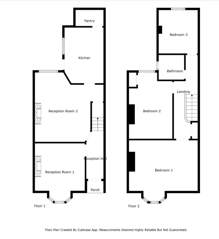
Traditional 3 bedroom mid terraced property in need of renovation and repair, overlooking the communal gardens and offering a great investment. In brief the property comprises 3 bedrooms, family bathroom, 2 large reception rooms, kitchen, pantry, rear garden and garage.

Council Tax Band: A (Cheshire East)
Tenure: Freehold
Access

Sitting behind a low brick wall and Privet hedge the property is approached over a red and black quarry tiled pathway to the entrance porch with Minton tiled walls to dado height. A part glazed wooden door leads into:

Reception Hall

Having a Minton tiled floor, coving to ceiling, corbels. Stairs rising to first floor landing. Wooden doors off to both reception rooms. Wall panelling to dado height.

Reception Room 1

w: 3.55m x l: 4.1m (w: 11' 8" x l: 13' 5")
Generous room with gas fire, walk in bay window with wooden single glazed sash windows. Plaster coving and ceiling rose.

Reception Room 2

w: 4.88m x l: 4.91m (w: 16' x l: 16' 1")
Another generous room boasting the original 'Butlers' cupboard with glazed doors and drawers below. Gas fire with wooden surround and tiled slips and hearth. Wooden window to rear elevation, archway to understairs storage and door through to:

Kitchen

w: 2.77m x l: 3.94m (w: 9' 1" x l: 12' 11")
Fitted with a range of wall, base and drawer units with sink and double drainer with mixer tap. Part glazed wooden door to side elevation, single glazed wooden sash window to side elevation. Part glazed door through to:

Pantry

w: 1.99m x l: 1.13m (w: 6' 6" x l: 3' 8")
Walk in pantry with cold slab and meat hooks to ceiling.

Stairs

Rising to first floor landing. Landing has original laundry cupboard, loft access. Doors off to all bedrooms and family bathroom.

Bathroom

w: 1.81m x l: 1.73m (w: 5' 11" x l: 5' 8")
Fitted with a 3 piece suite comprising panelled bath, pedestal wash hand basin and low level W.C.. Modesty glazed sash window to side elevation.

Bedroom 1

w: 4.88m x l: 4.32m (w: 16' x l: 14' 2")
Spacious double room with walk in single glazed wooden sash windows to front elevation.

Bedroom 2

w: 3.08m x l: 4.7m (w: 10' 1" x l: 15' 5")
Double room with built in cupboard housing water tanks. Wooden single glazed sash window to rear elevation. Feature cast iron fireplace.

Bedroom 3

w: 2.77m x l: 3.08m (w: 9' 1" x l: 10' 1")
Double room with wooden single glazed sash window to rear elevation.

Externally

The front garden sits behind a low red brick wall and Privet hedge and has a red and black quarry tiled path and a small shrub border. To the rear the garden is mainly laid to lawn with block paved pathways and shrub borders. To the rear a gateway leads to the alleyway and there is a single detached garage. Two brick built outbuildings for storage.

Energy Performance

We await the energy assessment.

About Crewe

When most people think of Crewe, they think of railways. During the 19th century Crewe was one of the world's greatest railway workshops and was a hotbed of craft and invention, building elegant locomotives that brought wealth and prestige to the town.

Crewe’s got a lot more to offer than just trains. There’s a thriving live music scene, as well as a range of shops, bars, pubs and restaurants. Take a stroll in Queen’s Park, a traditional Victorian park that is being restored to her former glory or take in a show at the award winning Crewe Lyceum.

Crewe is also home to the famous Crewe Alexandra Football Club – aptly nicknamed the Railwaymen!

SOLD AS SEEN - NOT THE CAR IN THE GARAGE HOWEVER!

INFORMATION FROM THE AUCTION HOUSE:

Please note that all marketing including property description and imagery has been provided by the introducing agent. The Auction Company strongly recommends interested parties arrange an in-person viewing (strictly by appointment only) to fully appreciate all the property has to offer and to satisfy your own requirements.

Method of Auction:

- This is a ‘Timed Online’ auction, meaning bidding takes place online.
- Visit The Auction Company website find the property details and the bidding method.
- How long the bidding process is open for, is clearly stated as is the closing date and end time.

Registering to bid:

- In order to bid on the property, you are required to register your details.
- You will be required to undertake identity checks as this is the law.
- You will be required to register your payment details. This is to ensure you have funds available to settle the Buyer’s Premium and deposit.
- A hold/shadow will be placed on £1,000 for this.
- If you place a bid, it is deemed you have read, understood and agree to the Terms and Conditions of The Auction Company in their entirety.
- T&Cs, Buyers Terms and Special Auction Conditions are found on each property details. You must read these before bidding.

Auction type - Traditional Method of Auction (Unconditional):

- If you are the highest bidder, you must exchange legally binding contracts for the sale when the auction for the property comes to an end and complete with 28 days.
- The held amount of £1,000 will be deducted from your account and forms the Buyer’s Premium minimum amount.
- You will be contacted within 2 hours to settle the deposit amount payable and any remaining Buyers Premium due. Failure to make the payments you will be in breach of our auction terms.
- The Buyer’s Premium is set at 4% + VAT (£5,000 + VAT minimum). This is non-refundable and does not constitute towards the cost of the property.
- The deposit amount is 10% of the sale price and will be collected within 2 hours of the close of auction.

Legal Pack:

- The legal pack is a set of documents that relate to the property and the sale of it.
- It is highly recommended that you download and consider the provided legal pack for the property you are interested in bidding on.
- It is also advisable that you seek legal advice regarding the content of the legal pack, to ensure certainty before bidding.
- To download the legal pack, search for The Auction Company website and find the property of interest. There is a tab for ‘legals’ where you will find the documents. To download, you must create a free account with The Auction Passport.
- The legal pack can change at any time up until the auction starts so you must check for the most recent version of the legal pack. At the point of placing your bid, you are deemed to have read the legal pack in its entirety, including any changes. Failure to check for changes to the legal pack will not be a valid reason for withdrawing from the sale.

Special Conditions of Sale:

- These conditions are not set by The Auction Company. They are conditions stipulated by the seller and are contractually binding.
- You are taken to have read and accepted these at the point of bidding, even if you have not done so. The Special Conditions of Sale are available to read in the legal pack.

Council Tax Band

A

Test Floor Plan
Test Charge

Property Details

16 Nelson Street, Crewe, Cheshire, CW2 7LJ

FOR SALE BY AUCTION * CASH BUYERS * AUCTION FINANCE * 28-DAY COMPLETION

Guide Price

£70,000



3 beds


1 bathroom


2 receptions


* Generally speaking Guide Prices are provided as an indication of each seller's minimum expectation, i.e. 'The Reserve'. They are not necessarily figures which a property will sell for and may change at any time prior to the auction. Virtually every property will be offered subject to a Reserve (a figure below which the Auctioneer cannot sell the property during the auction) which we expect will be set within the Guide Range or no more than 10% above a single figure Guide.

Available Lots

  LIVE NOW

Traditional Method

Derbyshire

AUCTION SALE – CASH OR AUCTION FINANCE
Guide Price

£495,000

Address

Church Gates House & Church Gates Cottage, Parwich, Ashbourne, Derbyshire, DE6 1QL

Auction Ends


3 beds


2 bathrooms


2 receptions

  LIVE NOW

Traditional Method

Abbey Court, Merseyside

AUCTION SALE – CASH OR AUCTION FINANCE
Guide Price

£235,000

Address

1 Abbey Court, Liverpool, Merseyside, L25 5HS

Auction Ends


4 beds


1 bathroom


1 reception

  LIVE NOW

Traditional Method

Middleton Road, Lancashire

AUCTION SALE – CASH - MORTGAGE -
Guide Price

£170,000

Address

701 Middleton Road, Chadderton, Oldham, Lancashire, OL9 9SN

Auction Ends


3 beds


1 bathroom


2 receptions

  LIVE NOW

Traditional Method

Liversidge Road, Merseyside

AUCTION SALE – CASH OR AUCTION FINANCE
Guide Price

£90,000

Address

20 Liversidge Road, Birkenhead, Merseyside, CH42 0LS

Auction Ends


4 beds


1 bathroom


1 reception

  LIVE NOW

Traditional Method

Waterloo Road, Merseyside

AUCTION SALE – CASH OR AUCTION FINANCE
Guide Price

£135,000

Address

Flat 315 Waterloo Quay, Waterloo Road, Liverpool, Merseyside, L3 0BT

Auction Ends


2 beds


2 bathrooms


1 reception

  LIVE NOW

Traditional Method

Whitmore Street, West Yorkshire

AUCTION SALE – CASH OR AUCTION FINANCE
Guide Price

£65,000

Address

4 Whitmore Street, South Elmsall, Pontefract, West Yorkshire, WF9 2RY

Auction Ends


2 beds


1 bathroom


1 reception

  LIVE NOW

Traditional Method

Herberton Road, Dorset

AUCTION SALE – CASH OR AUCTION FINANCE
Guide Price

£120,000

Address

54 Herberton Road, Bournemouth, Dorset, BH6 5HY

Auction Ends


2 beds


1 bathroom


1 reception

  LIVE NOW

Traditional Method

Grange Lane, Lancashire

AUCTION SALE – COMPLETE IN 56 DAYS
Guide Price

£360,000

Address

34 Grange Lane, Newton, Preston, Lancashire, PR4 3RS

Auction Ends


5 beds


3 bathrooms


3 receptions

  LIVE NOW

Traditional Method

Fancy Road, Dorset

AUCTION SALE – CASH OR AUCTION FINANCE
Guide Price

£255,000

Address

1A Fancy Road, Poole, Dorset, BH12 4QZ

Auction Ends


3 beds


2 bathrooms


1 reception

  LIVE NOW

Traditional Method

Rutter Street, Merseyside

AUCTION SALE – CASH OR AUCTION FINANCE
Guide Price

£40,000

Address

37 Mill View, Rutter Street, Liverpool, Merseyside, L8 6AG

Auction Ends


1 bed


1 bathroom


1 reception

  LIVE NOW

Traditional Method

Central Way, Cheshire

AUCTION SALE – CASH OR AUCTION FINANCE
Guide Price

£81,000

Address

Apartment 1 Frappell Court, Central Way, Warrington, Cheshire, WA2 7TD

Auction Ends


2 beds


1 bathroom


1 reception