3 Forfield Place, Leamington Spa, Warwickshire, CV31 1HG

Loading the bidding panel...

Buy with Auction Finance
Guide Price

£290,000

Forfield Place
Leamington Spa
Warwickshire
CV31 1HG
Share this property
The Auction Company
London
0333 207 2707

FOR SALE BY AUCTION

Description

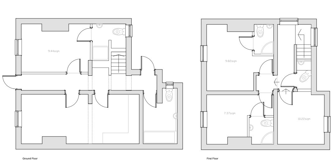
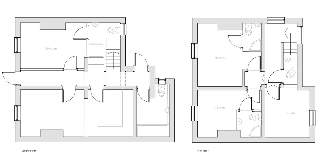
Are you an investor looking for a high-yield student accommodation in the heart of Leamington Spa? Or are you a home buyer looking for a spacious property that you can refurbish into your dream family home? Don’t miss this opportunity to acquire this fabulous four-bedroom detached property, situated in a popular and convenient location.

This property in brief includes:

- Open plan kitchen lounge/diner
- 4 bedrooms; 3 of which each have an ensuite shower room
- Large Bathroom with shower over bath
- Communal WC
- Rear courtyard with side and rear access

The property also benefits from the excellent nearby amenities, such as:

- Local Parks: Such as St Nicholas Park, Victoria Park, and Jephson Gardens

- Education: highly-rated schools; The Kingsley School , St Peter’s Catholic Primary School, and St Anthony’s Catholic Primary School

- Transport: Commute easily to other towns and cities with the convenient transport links, such as Leamington Spa Station, Warwick Station, Warwick Parkway Station and nearby bus route to Warwick University.

- Supermarkets: Marks & Spencer, Sainsbury’s and Morrisons all in close proximity

This property is currently let until the end of July 2024, generating a monthly rent of £2,800.

This is a rare chance to secure a profitable student home or a potential family home in a sought-after area.

Please note that the property was accepted by Warwick District Council as a small-scale HMO prior to the launch of the Article 4 Direction in the area. Prospective buyers to make their own enquiries to the relevant authorities to satisfy their own requirements prior to bidding.

To register your interest and book a viewing, please contact us today.

- EPC rating: D

- Tenure: Freehold

Information from The Auction Company

Please note that all marketing including property description and imagery has been provided by the introducing agent. The Auction Company strongly recommends interested parties arrange an in-person viewing (strictly by appointment only) to fully appreciate all the property has to offer and to satisfy your own requirements.

Method of Auction:

- This is a ‘Timed Online’ auction, meaning bidding takes place online.

- Visit The Auction Company website find the property details and the bidding method.

- How long the bidding process is open for, is clearly stated as is the closing date and end time.

Registering to bid:

- In order to bid on the property, you are required to register your details.

- You will be required to undertake identity checks as this is the law.

- You will be required to register your payment details. This is to ensure you have funds available to settle the Buyer’s Premium.

- A hold/shadow will be placed on £1,000 for this.

- If you place a bid, it is deemed you have read, understood and agree to the Terms and Conditions of The Auction Company in their entirety.

- T&Cs, Buyers Terms and Special Auction Conditions are found on each property details. You must read these before bidding.

Auction type – Modern Method of Auction (MMOA):

- If you are the highest bidder the held amount of £1,000 will be deducted from your account and forms the Buyer’s Premium minimum amount.

- The Buyer’s Premium is set at 4% + VAT (subject to a £5,000 + VAT minimum). This is non-refundable and does not constitute towards the cost of the property.

- You will be contacted within 24 hours to settle any remaining Buyers Premium due.

- On receipt of any outstanding balance owing, the property will be reserved for a period of 40 business days (56 days) in which to exchange and complete.

Legal Pack:

- The legal pack is a set of documents that relate to the property and the sale of it.

- It is highly recommended that you download and consider the provided legal pack for the property you are interested in bidding on.

- It is also advisable that you seek legal advice regarding the content of the legal pack, to ensure certainty before bidding.

- To download the legal pack, search for The Auction Company website and find the property of interest. There is a tab for ‘legals’ where you will find the documents. To download, you must create a free account with The Auction Passport.

- The legal pack can change at any time up until the auction starts so you must check for the most recent version of the legal pack. At the point of placing your bid, you are deemed to have read the legal pack in its entirety, including any changes. Failure to check for changes to the legal pack will not be a valid reason for withdrawing from the sale.

Special Conditions of Sale:

- These conditions are not set by The Auction Company. They are conditions stipulated by the seller and are contractually binding.

- You are taken to have read and accepted these at the point of bidding, even if you have not done so. The Special Conditions of Sale are available to read in the legal pack.

Council Tax Band

D

Test Floor Plan
Test Charge

Property Details

3 Forfield Place, Leamington Spa, Warwickshire, CV31 1HG

FOR SALE BY AUCTION

Guide Price

£290,000



4 beds


4 bathrooms


1 reception


Agreement Documents

Related Documents

* Generally speaking Guide Prices are provided as an indication of each seller's minimum expectation, i.e. 'The Reserve'. They are not necessarily figures which a property will sell for and may change at any time prior to the auction. Virtually every property will be offered subject to a Reserve (a figure below which the Auctioneer cannot sell the property during the auction) which we expect will be set within the Guide Range or no more than 10% above a single figure Guide.

Available Lots

  LIVE NOW

Traditional Method

Barnsley Road, West Yorkshire

AUCTION SALE – CASH OR AUCTION FINANCE
Guide Price

£45,000

Address

119 Barnsley Road, South Elmsall, West Yorkshire, WF9 2AE

Auction Ends


0 beds


1 bathroom


1 reception

  LIVE NOW

Traditional Method

Old Liverpool Road, Cheshire

AUCTION SALE – CASH OR AUCTION FINANCE
Guide Price

£100,000

Address

94 Old Liverpool Road, Warrington, Cheshire, WA5 1BU

Auction Ends


3 beds


1 bathroom


1 reception

  LIVE NOW

Traditional Method

Alma Road, Dorset

AUCTION SALE – CASH OR AUCTION FINANCE
Guide Price

£72,000

Address

179 Alma Road, Charminster, Bournemouth, Dorset, BH9 1AQ

Auction Ends


2 beds


1 bathroom


1 reception

  LIVE NOW

Traditional Method

London Road, Cheshire

AUCTION SALE – CASH OR AUCTION FINANCE
Guide Price

£110,000

Address

365 London Road, Hazel Grove, Cheshire, SK7 6AA

Auction Ends


0 beds


1 bathroom


5 receptions

  LIVE NOW

Traditional Method

Rydings, Berkshire

AUCTION SALE – CASH OR AUCTION FINANCE
Guide Price

£140,000

Address

22 Rydings, Windsor, Berkshire, SL4 4HF

Auction Ends


1 bed


1 bathroom


1 reception

  LIVE NOW

Traditional Method

Little Street, Berkshire

AUCTION SALE – CASH OR AUCTION FINANCE
Guide Price

£135,000

Address

18 Little Street, Reading, Berkshire, RG1 7PB

Auction Ends


2 beds


1 bathroom


1 reception

  LIVE NOW

Traditional Method

Off Park Lane, Cheshire

AUCTION SALE – CASH OR AUCTION FINANCE
Guide Price

£80,000

Address

Apartment 8 Abbeyfields, . Off Park Lane, Sandbach, Cheshire, CW11 1EP

Auction Ends


1 bed


1 bathroom


1 reception

  LIVE NOW

Traditional Method

Charlton Road, Oxfordshire

AUCTION SALE – CASH OR AUCTION FINANCE
Guide Price

£150,000

Address

6 Badgers Gardens, Charlton Road, Wantage, Oxfordshire, OX12 8FE

Auction Ends


2 beds


1 bathroom


1 reception

  LIVE NOW

Traditional Method

Coates Road, Worcestershire

AUCTION SALE – CASH OR AUCTION FINANCE
Guide Price

£165,000

Address

14 Coates Road, Kidderminster, Worcestershire, DY10 2TZ

Auction Ends


3 beds


1 bathroom


1 reception

  LIVE NOW

Traditional Method

Greenview Drive, Northamptonshire

AUCTION SALE – CASH OR AUCTION FINANCE
Guide Price

£160,000

Address

50 Greenview Drive, Northampton, Northamptonshire, NN2 7LJ

Auction Ends


2 beds


1 bathroom


1 reception

  LIVE NOW

Traditional Method

Evelyn Street, Cheshire

AUCTION SALE – CASH OR AUCTION FINANCE
Guide Price

£80,000

Address

112 Evelyn Street, Warrington, Cheshire, WA5 1BJ

Auction Ends


2 beds


1 bathroom


1 reception

  LIVE NOW

Traditional Method

Ansdell Road, South Yorkshire

AUCTION SALE – CASH OR AUCTION FINANCE
Guide Price

£70,000

Address

39 Ansdell Road, Bentley, South Yorkshire, DN5 0ET

Auction Ends


2 beds


1 bathroom


1 reception

  LIVE NOW

Traditional Method

Calderbank Street, Lancashire

AUCTION SALE – CASH OR AUCTION FINANCE
Guide Price

£110,000

Address

2 Calderbank Street, Wigan, Lancashire, WN5 9JF

Auction Ends


3 beds


1 bathroom


2 receptions