27-29 Yorkshire Street, Blackpool, FY1 5BG

Loading the bidding panel...

Buy with Auction Finance
Guide Price

£60,000

Yorkshire Street
Blackpool
FY1 5BG
Share this property
The Auction Company
London
0333 207 2707

FOR SALE BY AUCTION

Description

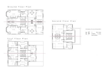
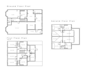
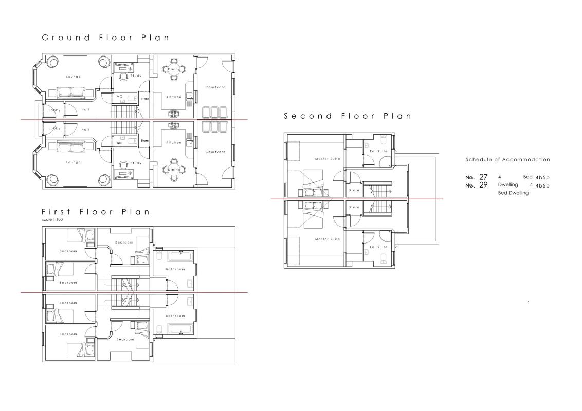
Ideal investment opportunity with planning permission granted for two separate dwellings. This 8-bedroom terraced residence is located in the seaside resort town of Blackpool within a short walking distance of central pier and Blackpool tower and seafront. The property is currently standing as one residence and comprises of eight bedrooms, five reception rooms, room with plumbing for ground floor bathroom facilities, space for kitchen. To the first floor there is plumbing for bathroom facilities.

• INVESTMENT OPPORTUNITY WITH PLANNING GRANTED FOR TWO SPEARATE HOUSES

• BLACKPOOL COUNCIL PLANNING REFERENCE: 23/0283

• PROMINENT BLACKPOOL LOCATION WITHING WALKING DISTANCE OF WATERFRONT, CENTRAL PIER AND BLACKPOOL TOWER

• SPANNING OVER THREE FLOORS

• FIVE RECEPTIONS TO GROUND FLOOR, ROOM FOR KITCHEN FACILITIES, PLUMBING FOR BATHROOM FACILITIES

• TO THE FIRST FLOOR THERE IS SIX BEDROOMS AND PLUMBING FOR BATHROOM FACILITIES

• TO THE SECOND FLOOR THERE IS A FURTHER TWO BEDROOMS WITH SEPARATE STAIR ACCESS

• FULL PLANNING DETAILS REF 23/0283 BLACKPOOL COUNCIL

Hallway

Having space for front door, electric meter, stairs leading to first floor.

Front Lounge 1
24’10” min 27’10” into bay length x 14’0” into alcove width

Having exposed floorboards, single glazed bay window, internal space for window to rear elevation, under stairs storage cupboard, space to:-

Reception 2
11’11” width x 9’10” length

Open doorway to kitchen, open arch to:-

Ground floor W.C.
10’11” length x 4’0” width

Having space for window currently board, space for internal window to side elevation.

Kitchen area
19’10” width x 8’0”

Having tiled floor, three spaces for rear external windows, open archway to reception 4, door leading to:-

Reception 3
17’1” length x 5’1” width

Having door leading to rear yard, space for internal window to Front lounge 2.

Reception 4
9’11” length x 9’0” width

With open doorway to Front Lounge 2.

Front Lounge 2
27’1” into bay (24’11” min) length x 15’1” width

Having single glazed bay window, fusebox.

1st Floor

Stairs being open to Bedroom 3.

Front Bedroom 1
15’0” width x 12’1” length

With two single glazed windows to front elevation, two open arches.

Front Bedroom 2
15’10” width x 12’1” length

With two single glazed windows to front elevation, open archway to rear bedroom 4.

Rear Bedroom 3
15’0” width x 12’1” length

With stairs leadings from ground floor, stairs leading to 2nd floor bedroom 7, open doorway to rear bedroom 5.

Rear Bedroom 4
15’7” width x 12’1” length

With stairs leading to 2nd floor bedroom 8, stairs leading up from bedroom 6, open archway to front bedroom 2.

Rear Bedroom 5
9’10” length x 9’1” width

With rear door access to fire escape, open arch to:-

Potential bathroom
9’10” length x 6’0” width

With plumbing for bathroom facilities, rear door to fire escape, single glazed window to side elevation.

Rear Bedroom 6

With single glazed window to side elevation, stairs leading to bedroom 4.

2nd floor

Bedroom 7
28’10” max 25’1” min length x 15’0”

Two single glazed windows to front elevation, two single glazed windows to rear elevation.

Bedroom 8
29’0” max 25’1” min length x 15’0” width

Two single glazed window to front elevation, two uPVC double glazed windows to rear elevation.

External

Rear yard with rear gate access.

Information from The Auction Company

Please note that all marketing including property description and imagery is for illustration purposes only and must not be relied upon. The Auction Company strongly recommends interested parties arrange an in-person viewing (strictly by appointment only) to fully appreciate all the property has to offer and to satisfy your own requirements.

Method of Auction:

- This is a ‘Timed Online’ auction, meaning bidding takes place online.
- Visit The Auction Company website find the property details and the bidding method.
- How long the bidding process is open for, is clearly stated as is the closing date and end time.

Registering to bid:

- In order to bid on the property, you are required to register your details.
- You will be required to undertake identity checks as this is the law.
- You will be required to register your payment details. This is to ensure you have funds available to settle the Buyer’s Premium and deposit.
- A hold/shadow will be placed on £1,000 for this.
- If you place a bid, it is deemed you have read, understood and agree to the Terms and Conditions of The Auction Company in their entirety.
- T&Cs, Buyers Terms and Special Auction Conditions are found on each property details. You must read these before bidding.

Auction type - Traditional Method of Auction (Unconditional):

- If you are the highest bidder, you must exchange legally binding contracts for the sale when the auction for the property comes to an end and complete with 28 days.
- The held amount of £1,000 will be deducted from your account and forms the Buyer’s Premium minimum amount.
- You will be contacted within 2 hours to settle the deposit amount payable and any remaining Buyers Premium due.
- The Buyer’s Premium is set at 4% + VAT (£5,000 + VAT minimum). This is non-refundable and does not constitute towards the cost of the property.
- The deposit amount is 10% of the sale price and will be collected within 2 hours of the close of auction.

Legal Pack:

- The legal pack is a set of documents that relate to the property and the sale of it.
- It is highly recommended that you download and consider the provided legal pack for the property you are interested in bidding on.
- It is also advisable that you seek legal advice regarding the content of the legal pack, to ensure certainty before bidding.
- To download the legal pack, search for The Auction Company website and find the property of interest. There is a tab for ‘legals’ where you will find the documents. To download, you must create a free account with The Auction Passport.
- The legal pack can change at any time up until the auction starts so you must check for the most recent version of the legal pack. At the point of placing your bid, you are deemed to have read the legal pack in its entirety, including any changes. Failure to check for changes to the legal pack will not be a valid reason for withdrawing from the sale.

Special Conditions of Sale:

- These conditions are not set by The Auction Company. They are conditions stipulated by the seller and are contractually binding.
- You are taken to have read and accepted these at the point of bidding, even if you have not done so. The Special Conditions of Sale are available to read in the legal pack.

Council Tax Band

B

Test Floor Plan
Test Charge

Property Details

27-29 Yorkshire Street, Blackpool, FY1 5BG

FOR SALE BY AUCTION

Guide Price

£60,000



8 beds


5 receptions


Agreement Documents

Related Documents

* Generally speaking Guide Prices are provided as an indication of each seller's minimum expectation, i.e. 'The Reserve'. They are not necessarily figures which a property will sell for and may change at any time prior to the auction. Virtually every property will be offered subject to a Reserve (a figure below which the Auctioneer cannot sell the property during the auction) which we expect will be set within the Guide Range or no more than 10% above a single figure Guide.

Available Lots

  LIVE NOW

Traditional Method

Barnsley Road, West Yorkshire

AUCTION SALE – CASH OR AUCTION FINANCE
Guide Price

£45,000

Address

119 Barnsley Road, South Elmsall, West Yorkshire, WF9 2AE

Auction Ends


0 beds


1 bathroom


1 reception

  LIVE NOW

Traditional Method

Old Liverpool Road, Cheshire

AUCTION SALE – CASH OR AUCTION FINANCE
Guide Price

£100,000

Address

94 Old Liverpool Road, Warrington, Cheshire, WA5 1BU

Auction Ends


3 beds


1 bathroom


1 reception

  LIVE NOW

Traditional Method

Alma Road, Dorset

AUCTION SALE – CASH OR AUCTION FINANCE
Guide Price

£72,000

Address

179 Alma Road, Charminster, Bournemouth, Dorset, BH9 1AQ

Auction Ends


2 beds


1 bathroom


1 reception

  LIVE NOW

Traditional Method

London Road, Cheshire

AUCTION SALE – CASH OR AUCTION FINANCE
Guide Price

£110,000

Address

365 London Road, Hazel Grove, Cheshire, SK7 6AA

Auction Ends


0 beds


1 bathroom


5 receptions

  LIVE NOW

Traditional Method

Rydings, Berkshire

AUCTION SALE – CASH OR AUCTION FINANCE
Guide Price

£140,000

Address

22 Rydings, Windsor, Berkshire, SL4 4HF

Auction Ends


1 bed


1 bathroom


1 reception

  LIVE NOW

Traditional Method

Little Street, Berkshire

AUCTION SALE – CASH OR AUCTION FINANCE
Guide Price

£135,000

Address

18 Little Street, Reading, Berkshire, RG1 7PB

Auction Ends


2 beds


1 bathroom


1 reception

  LIVE NOW

Traditional Method

Off Park Lane, Cheshire

AUCTION SALE – CASH OR AUCTION FINANCE
Guide Price

£80,000

Address

Apartment 8 Abbeyfields, . Off Park Lane, Sandbach, Cheshire, CW11 1EP

Auction Ends


1 bed


1 bathroom


1 reception

  LIVE NOW

Traditional Method

Charlton Road, Oxfordshire

AUCTION SALE – CASH OR AUCTION FINANCE
Guide Price

£150,000

Address

6 Badgers Gardens, Charlton Road, Wantage, Oxfordshire, OX12 8FE

Auction Ends


2 beds


1 bathroom


1 reception

  LIVE NOW

Traditional Method

Coates Road, Worcestershire

AUCTION SALE – CASH OR AUCTION FINANCE
Guide Price

£165,000

Address

14 Coates Road, Kidderminster, Worcestershire, DY10 2TZ

Auction Ends


3 beds


1 bathroom


1 reception

  LIVE NOW

Traditional Method

Greenview Drive, Northamptonshire

AUCTION SALE – CASH OR AUCTION FINANCE
Guide Price

£160,000

Address

50 Greenview Drive, Northampton, Northamptonshire, NN2 7LJ

Auction Ends


2 beds


1 bathroom


1 reception

  LIVE NOW

Traditional Method

Evelyn Street, Cheshire

AUCTION SALE – CASH OR AUCTION FINANCE
Guide Price

£80,000

Address

112 Evelyn Street, Warrington, Cheshire, WA5 1BJ

Auction Ends


2 beds


1 bathroom


1 reception

  LIVE NOW

Traditional Method

Ansdell Road, South Yorkshire

AUCTION SALE – CASH OR AUCTION FINANCE
Guide Price

£70,000

Address

39 Ansdell Road, Bentley, South Yorkshire, DN5 0ET

Auction Ends


2 beds


1 bathroom


1 reception

  LIVE NOW

Traditional Method

Calderbank Street, Lancashire

AUCTION SALE – CASH OR AUCTION FINANCE
Guide Price

£110,000

Address

2 Calderbank Street, Wigan, Lancashire, WN5 9JF

Auction Ends


3 beds


1 bathroom


2 receptions